Rainwater Harvesting
Environmental Sustainability
Rainwater harvesting at IIT (BHU) plays a crucial role in promoting environmental sustainability by conserving water resources and fostering responsible water management practices. Here are some ways in which rainwater harvesting contributes to environmental sustainability:
- Water Conservation
- Mitigating Urban Flooding
- Groundwater Recharge
- Promoting Biodiversity
- Reducing Energy Consumption
- Climate Change Adaptation
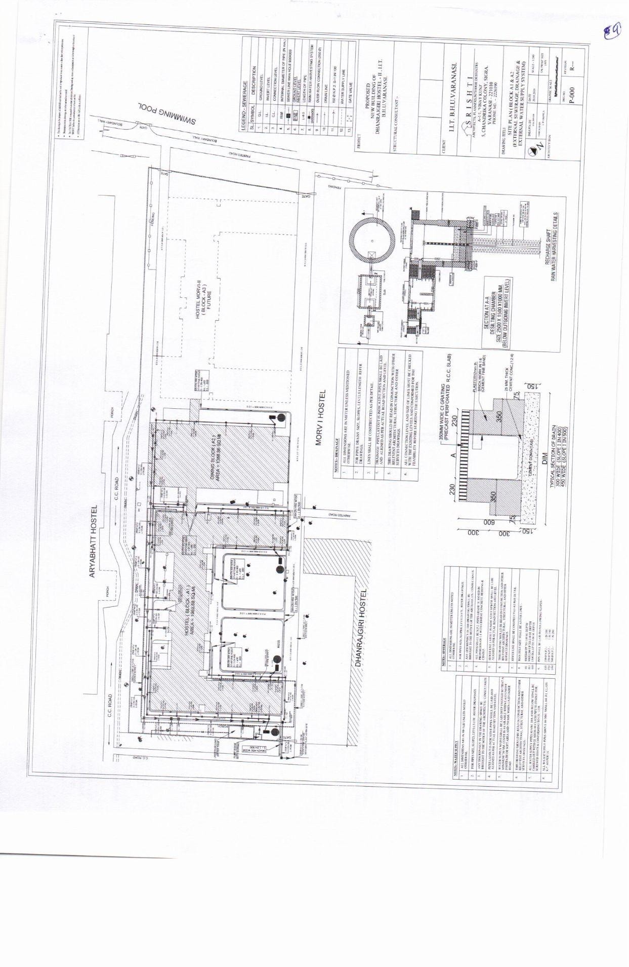
Table 1 illustrates the various builds which support Rainwater harvesting at IIT (BHU). The total area is around 6,200 SQM. Figures 1 to 4 illustrate the landscape of the buildings.
Details | Information |
|---|---|
Total Area | around 6,200 SQM |
Table 1 illustrates the various builds which support Rainwater harvesting at IIT (BHU)

Figures 1 to 4 illustrate the landscape of the buildings.




